PROWER TECHNIK Dvojstĺpový zdvihák 4500 kg - elektrohydraulický s jednostranným MANUÁLNYM odistením
PROWER TECHNIK Dvojstĺpový zdvihák 4500 kg -
elektrohydraulický s manuálnym/ručným odistením bezpečnostných západiek iba na jednej strane

Montážne video tu:

- Dvojstĺpový elektrohydraulický zdvihák s jednostranným manuálnym odistením značky PROWER s nosnosťou 4,5 tony s prejazdom je navrhnutý tak, aby spĺňal očakávania aj náročných používateľov.
| Parameter | Hodnota |
|---|---|
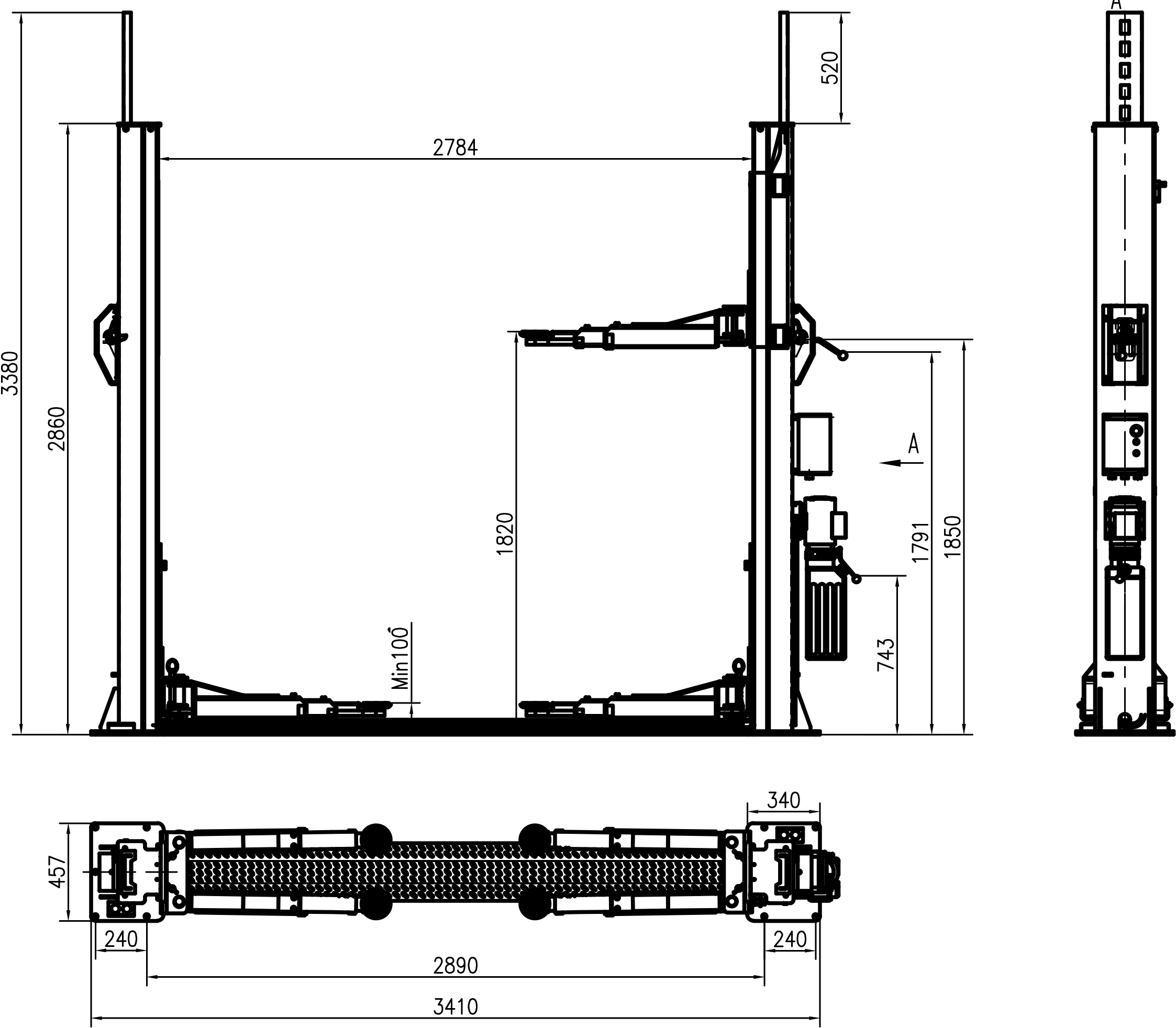
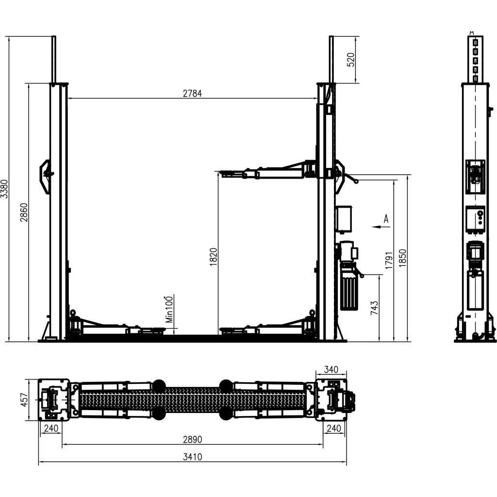
| Nosnosť | 4 500 kg |
| Typ konštrukcie | Dvojstĺpový zdvihák so spodnou prepojkou |
| Výška zdvihu | 1820 mm |
| Min. výška ramien | 100 mm |
| Rozostup stĺpov | 2784 mm |
| Vonkajšia šírka | 3410 mm |
| Dĺžka spodnej prepojky | 2890 mm |
| Celková výška stĺpov | cca 3380 mm |
| Odistenie bezpečnostných západiek | Manuálne |
| Pohon | Elektro-hydraulický |
| Hydraulická jednotka | Pravý stĺp |
Dvojstĺpový elektro-hydraulický zdvihák BLACKTOOL s nosnosťou 4,5 t je určený pre profesionálne autoservisy, pneuservisy aj dielne, ktoré potrebujú spoľahlivé a robustné riešenie na zdvíhanie osobných a ľahkých úžitkových vozidiel.
Konštrukcia so spodnou prepojkou (floor-plate) umožňuje inštaláciu aj v priestoroch s nižším stropom, pričom chráni synchronizačné laná a hydraulické vedenia v oceľovom profile na podlahe.
Model je vybavený manuálnym odistením bezpečnostných západiek, čo zabezpečuje jednoduchú a bezproblémovú obsluhu bez nutnosti dodatočnej elektroniky.

- Nosnosť 4 500 kg – vhodné pre väčšinu osobných a dodávkových vozidiel
- Spodná prepojka (floor-plate) – ideálne riešenie do dielní s nižším stropom
- Manuálne odistenie poistiek – jednoduchý, spoľahlivý a nenáročný systém
- Synchronizačný mechanizmus chránený v spodnom profile
-
Nízka minimálna výška ramien (100 mm) – vhodné aj pre autá s nízkym podvozkom
-
Robustná oceľová konštrukcia – dlhá životnosť a stabilita pri plnom zaťažení
-
Zdvih až 1820 mm – pohodlný priestor na prácu pod vozidlom
-
Hydraulická jednotka umiestnená na pravom stĺpe – jednoduchý servis a prístupnosť

- Univerzálne adaptéry – umožňujú zdvih vozidla v rôznych výškach podľa potreby.
- Protišmyková gumová podložka – chráni vozidlo pred poškodením a zabezpečuje stabilitu.
- Odolná oceľová konštrukcia – vysoká nosnosť a dlhá životnosť.
- Jednoduchá inštalácia – rýchla montáž a demontáž bez nutnosti špeciálneho náradia.
- Ramená sú vybavené gumovými ochrannými prvkami.


- Automatický, mechanický systém aretácie polohy záchytných ramien.
- Ramená tvoria podporu pre osobné vozidlá, malé/stredné dodávky a úžitkové vozidlá 4x4.


.gif)
- Manuálne odistenie bezpečnostných západiek z jednej strany – jednoduché a rýchle uvoľnenie poistiek jedným pohybom páky.
| Kategória: | Dvojstĺpové zdviháky |
|---|---|
| Hmotnosť: | 0.5 kg |
| Výrobca: | PROWER |
| Druh: | Dvojstĺpový zdvihák |
| Nosnosť: | 4500 kg (4,5 t) |
| Krajina pôvodu: | Čína |
| Položka bola vypredaná… | |
Hodnotenie tovaru
Buďte prvý, kto napíše príspevok k tejto položke.
.png)